Diseño de un biodigestor utilizando la vinaza para generar energía eléctrica y reducir el nivel de contaminación en la fábrica de alcohol Bary
Cargando...
Fecha
2021
Autores
Meoño Incio, Jossimar Manuel
Meoño Incio, Jossimar Manuel
Título de la revista
ISSN de la revista
Título del volumen
Editor
Universidad Católica Santo Toribio de Mogrovejo
Resumen
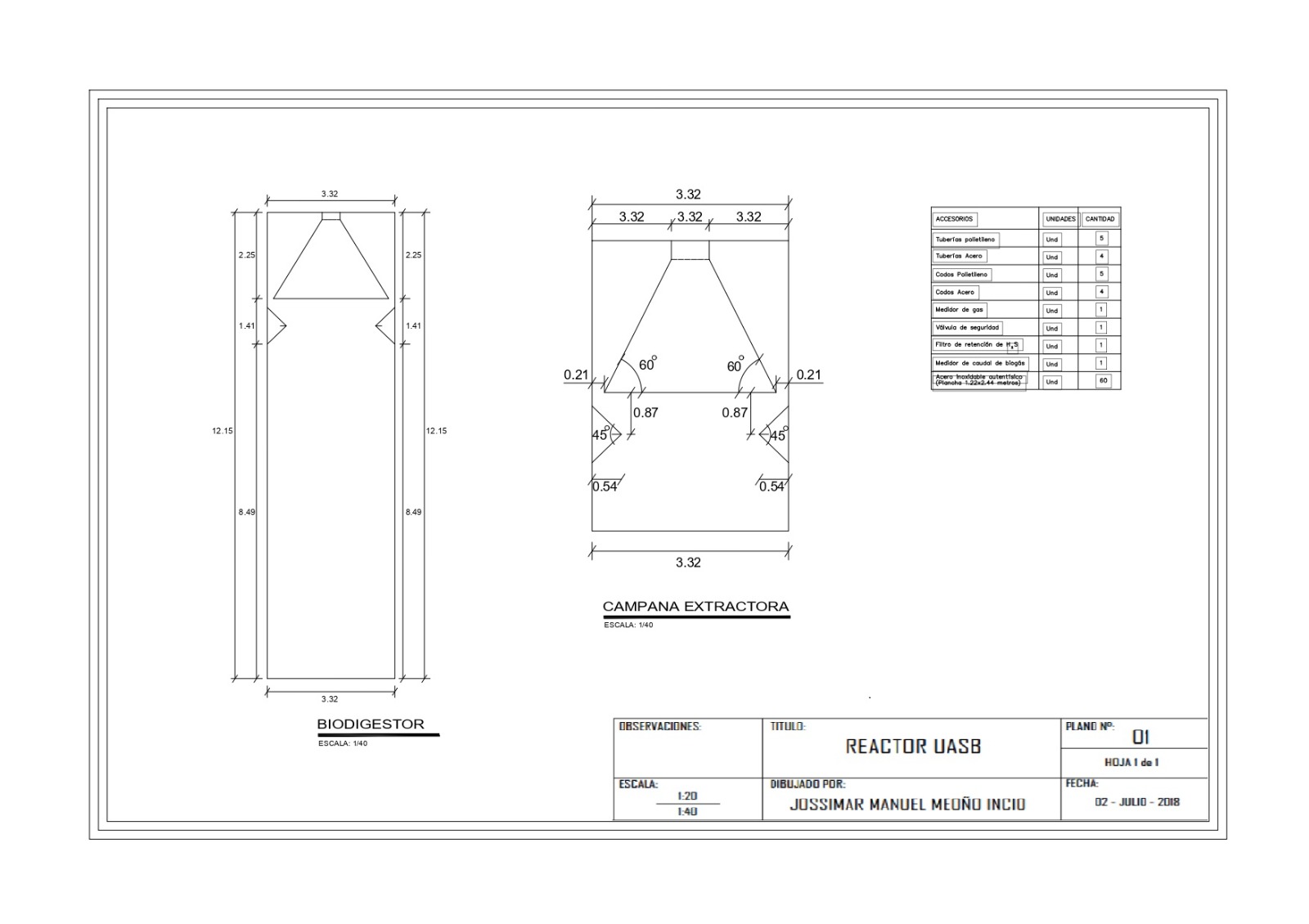
La presente investigación tuvo como objetivo, establecer el diseño de un biodigestor utilizando la vinaza para generar energía eléctrica y reducir el nivel de contaminación en la fábrica de alcohol Bary. Y es que en el desarrollo de la producción de alcohol en el proceso de destilación que maneja la melaza de caña, generada por los mismos ingenieros que laboran dentro del ámbito del azúcar, es que se forma un subproducto que se conoce como la vinaza, el cual tiene una diversidad de propiedades y componentes que juntos generan cualidades especiales, y su descarga indiscriminada puede causar serios problemas para el medio ambiente. La vinaza es un efluente que se produce en las fábricas de alcohol, los cuales no son aprovechados y son vertidos hacia los cuerpos receptores (drenes, desagües, ríos, riachuelos), motivo por el cual el presente tema de investigación trata de aprovechar estos grandes desperdicios para darle una posterior utilidad dentro del proceso industrial. En este proyecto de investigación se diseñó un biodigestor que aproveche la vinaza desechada por la fábrica de alcohol para generar biogás a través de la biodegradación de esta, por medio de microorganismos u pequeñas formas de vida y otros factores, considerando la ausencia de oxígeno. Este combustible se utilizará como fuente principal en un grupo electrógeno para para generar energía eléctrica disminuyendo los costos y el impacto ambiental. El biodigestor a utilizar será un reactor UASB, ya que este biodigestor nos brinda muchas ventajas en el sector industrial respecto a otros biodigestores.
Descripción
Palabras clave
Biogás, Energía eléctrica, Contaminación, Prevención
Citación
J. M. Meoño Incio. "Diseño de un biodigestor utilizando la vinaza para generar energía eléctrica y reducir el nivel de contaminación en la fábrica de alcohol Bary," tesis de licenciatura, Fac. de Ingienería, Univ. USAT, Chiclayo, Perú, 2021. [En línea]. Disponible en:
